CASA BLOCK
UBICACIÓN: Medellín - Colombia
DISEÑO: Arq. Manuela Uribe y Arq. Sara Suárez
CLIENTE: Contenedores de Antioquia
AÑO: 2016
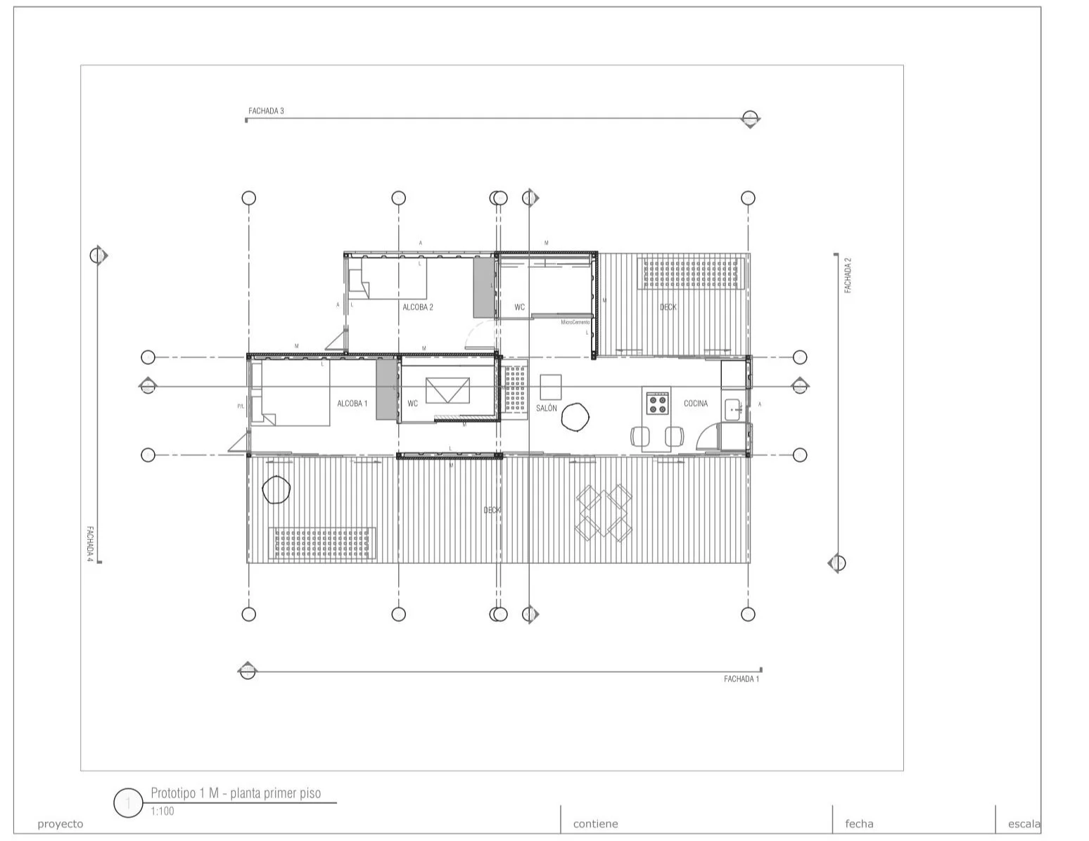
Casa block es una propuesta de vivienda modular alternativa y sostenible para Contenedores de Antioquia SAS, una empresa con sede en Medellín, que ofrece soluciones de espacios comerciales y residenciales a partir del uso de contendores de carga reciclados. El aspecto principal de este proyecto es plantear una solución de vivienda asequible, de construcción rápida y adaptable a las necesidades espaciales del usuario. La solución modular propone una vivienda tamaño S, M y L, iniciando por un módulo mínimo de 30m2 que se puede ampliar agregando otros contenedores.
Este proyecto es ideal no solo para una solución habitacional general, sino también para viviendas de emergencia por desastres y campamentos de refugiados. Además, este proyecto tiene potencial para desarrollar un esquema de autoconstrucción, en el que las personas compran las diferentes partes y las ensamblan ellas mismos. Esta posibilidad podría contribuir en gran medida a reducir el déficit habitacional en Colombia.
Casa block is an alternative and sustainable housing proposal for Contenedores de Antioquia, a Medellin based company, which recycles shipping containers and renovates them into commercial and housing buildings, construction encampments and now they want to explore the housing realm.
The main aspect of this project is to propose an affordable housing solution, which is fast-built and adaptable to the user’s spatial needs. The house starts with 30m2 and can expand aggregating containers.
This project is ideal not only for a general housing solution but also for disaster emergency housing and refugee camps, very frequent in Colombia.
Furthermore, this project has a lot of potential to develop a self-building scheme, in which people buy the different parts and ensemble them themselves. This possibility will highly contribute to reduce the housing deficit in Colombia.
Tipología S
Tipología M
Tipología L, piso 1
Tipología L, piso 2