OFICINAS INDECO


UBICACIÓN: Envigado, Antioquia

DISEÑO: Arq. Manuela Uribe

CLIENTE: Indeco Constructora

AÑO: 2015-2016 


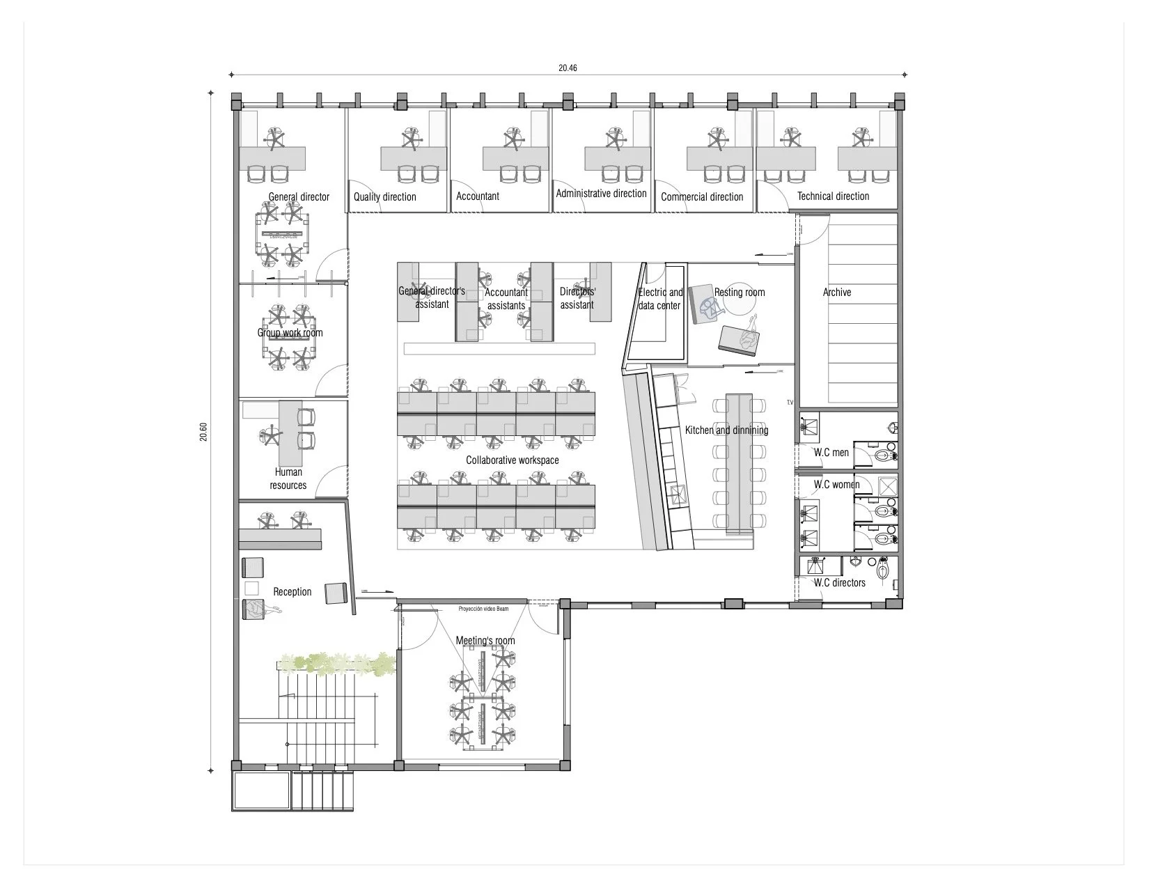
 El diseño de las oficinas principales forma parte de la reestructuración administrativa y de imagen de esta constructora con sede en Medellín, Colombia. El diseño tiene en cuenta nuevos conceptos adoptados por la empresa como el trabajo colaborativo y más contacto entre directivos y colaboradores. También brinda espacios cómodos para descansar y compartir entre compañeros de trabajo, creando un espacio de trabajo más agradable que busca más bienestar y más productividad.

La distribución propone un espacio abierto central, que potencia la flexibilidad y permite múltiples configuraciones de mobiliario, una barra periférica con oficinas independientes y salones para diferentes usos, y una circulación continua entre las oficinas periféricas y el espacio abierto que genera una secuencia espacial fluida. Las oficinas de los directores se sitúan en las salas periféricas con divisiones transparentes. Un mueble flotante en el espacio abierto divide el espacio de trabajo colaborativo y la zona de descanso de servicios de los empleados.

 

The design of the main offices is part of the administrative and image restructuring of this construction company based in Medellín, Colombia. The design takes into account new concepts adopted by the company such us collaborative work and more contact between directors and collaborators. It also provides comfortable spaces for resting and sharing among co-workers, creating a more pleasant workspace that seeks better interpersonal relations and more productivity.

The layout proposes a central open space, which enhances flexibility and allows multiple furniture configurations, a peripheral bar with contained offices and rooms for different uses, and a continuous loop-like circulation in between the peripheral rooms and the open space that generates a fluid spatial sequence.The directors’ offices are located in the peripheral rooms with clear and light partitions. A free-standing volume within the open area divides the workspace and the service and employees lounge area.

Previous
Previous

Casa Block